Vue du bâtiment depuis la rue Rodier © Ailleurs Studio
Vue depuis la nouvelle cour intérieure © Ailleurs Studio
Appartement-type
Coursive distributive
Axonométrie droite
Plan masse
Second sous-sol
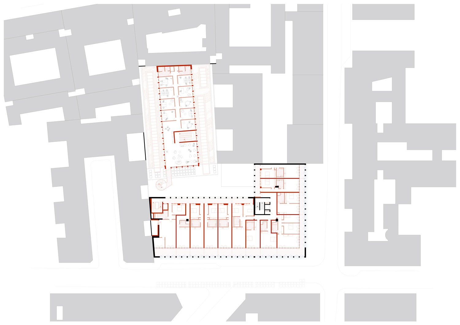
Premier sous-sol
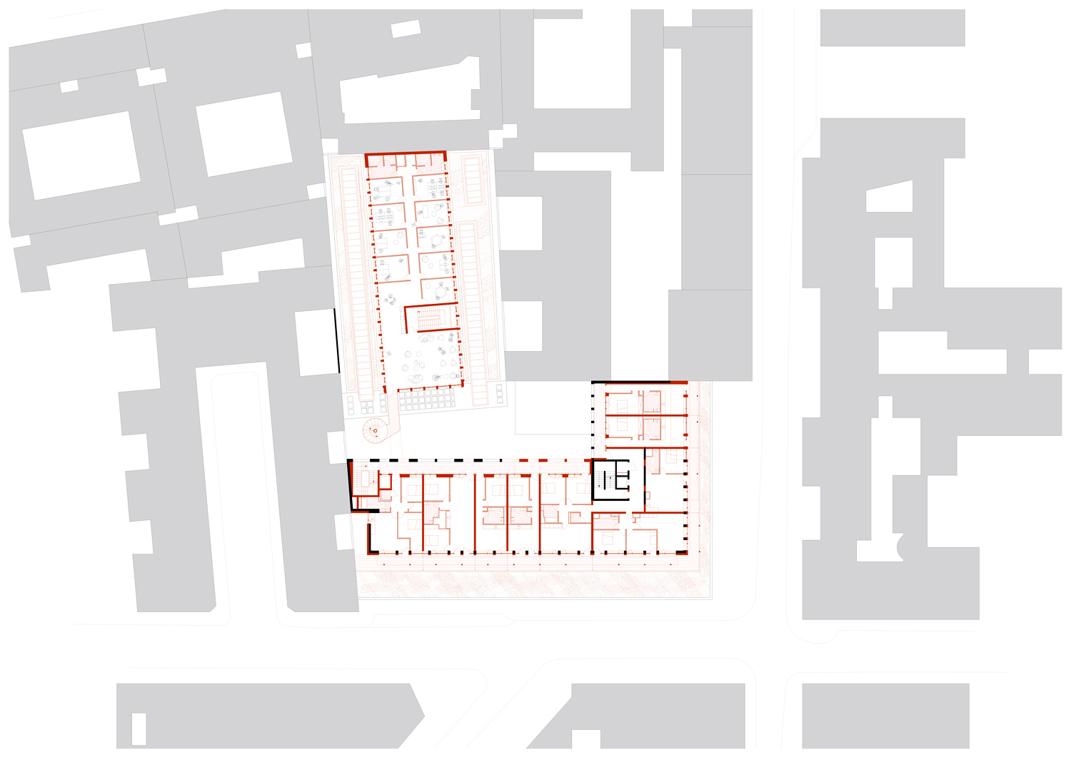
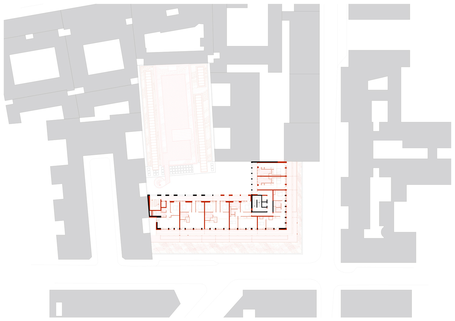
Plan de sol
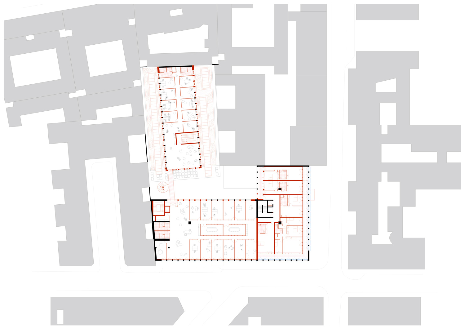
Plan R01
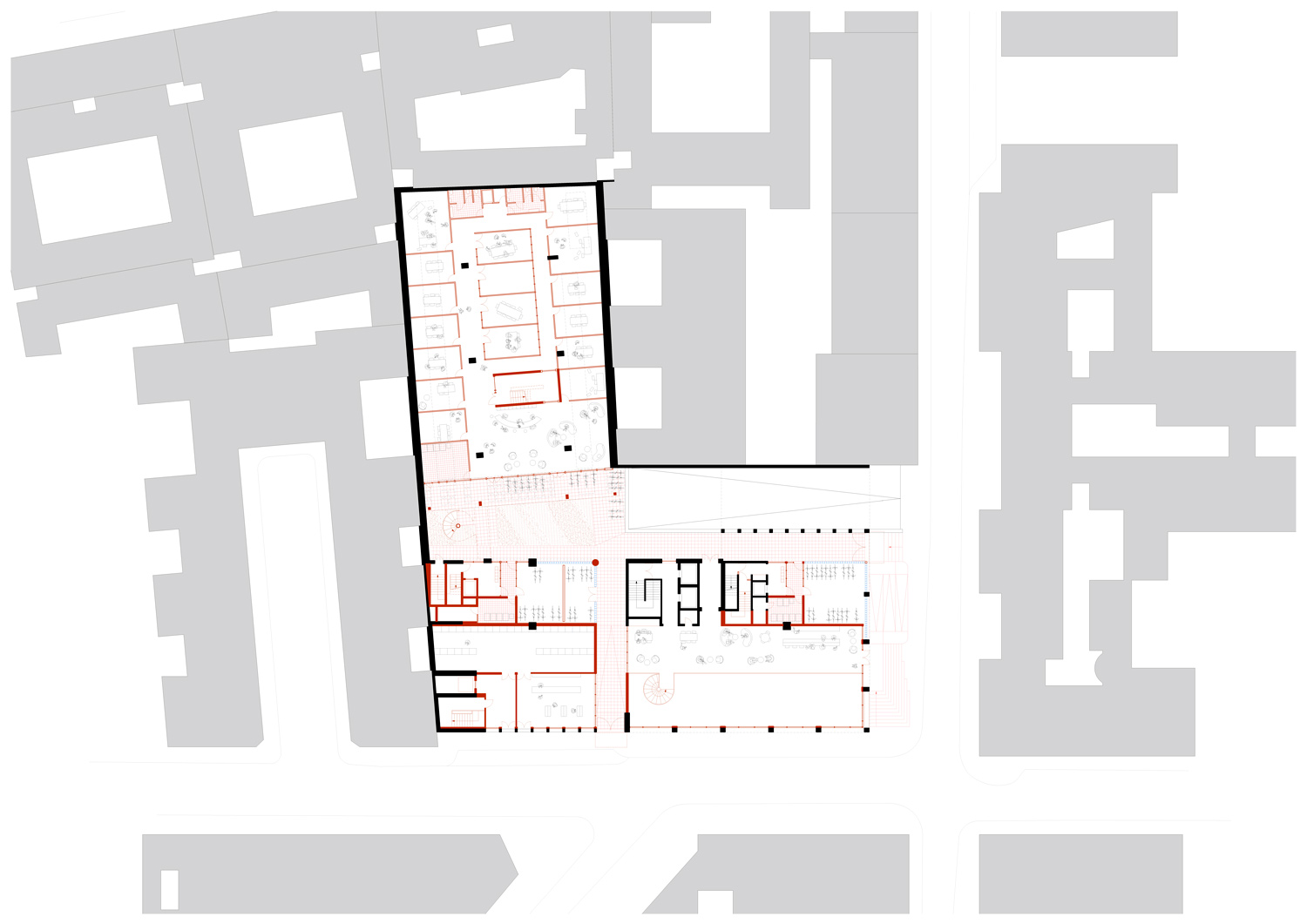
Plan R02
Plan R03
Plan R04
Plan R05
Appartement-type
Coupe transversale
Coupe transversale
Coupe longitudinale
Coupe longitudinale
Détail n°1
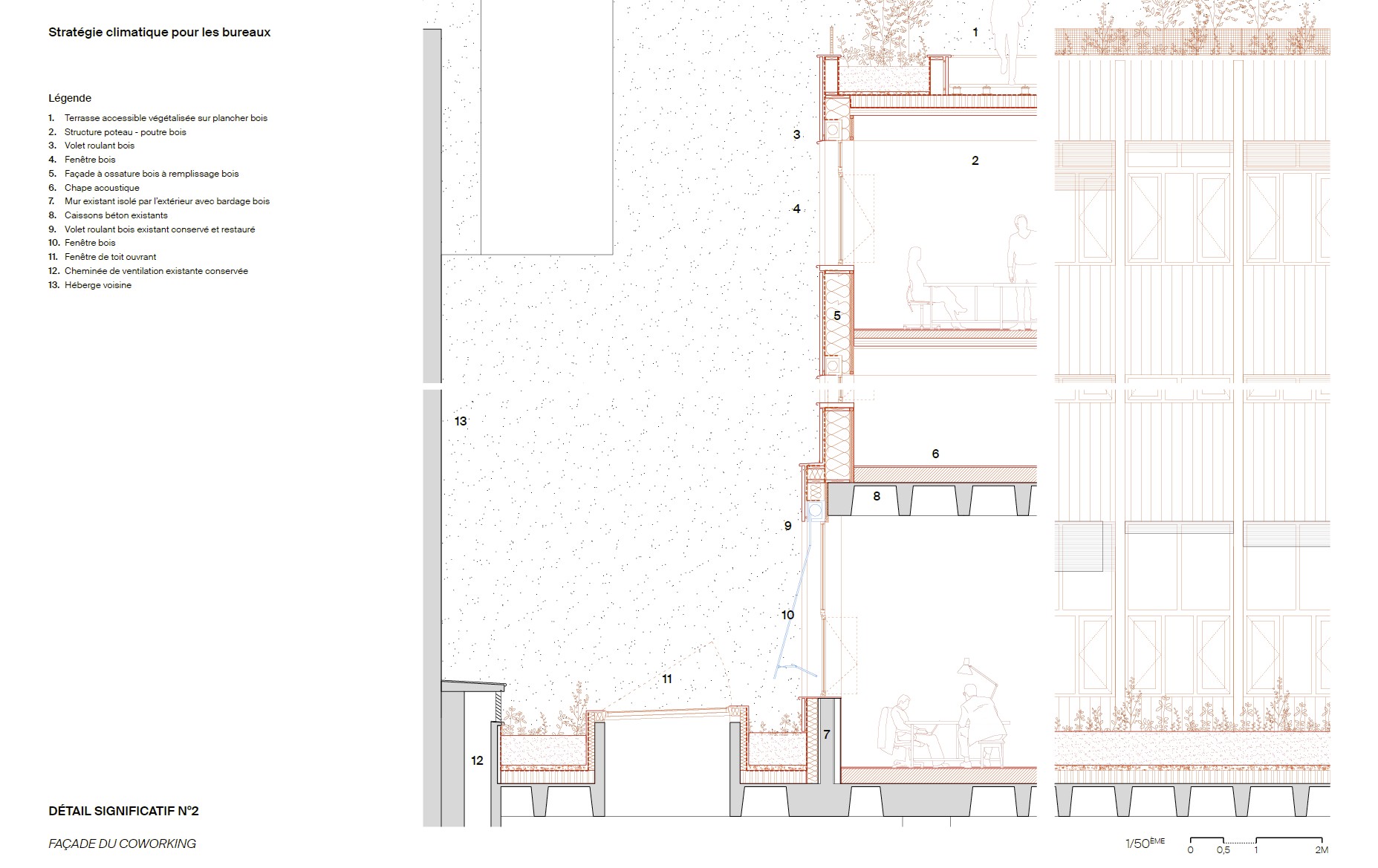
Détail n°2
Détail n°3
Emplacement de la Poste Rodier sur l'ancien atlas Vasserot
Système COBA
Espaces intérieurs
Espaces intérieurs
Espaces intérieurs
Approche inspiré par la stratégie du bernard l'hermite
Axonométrie programmatique